Details

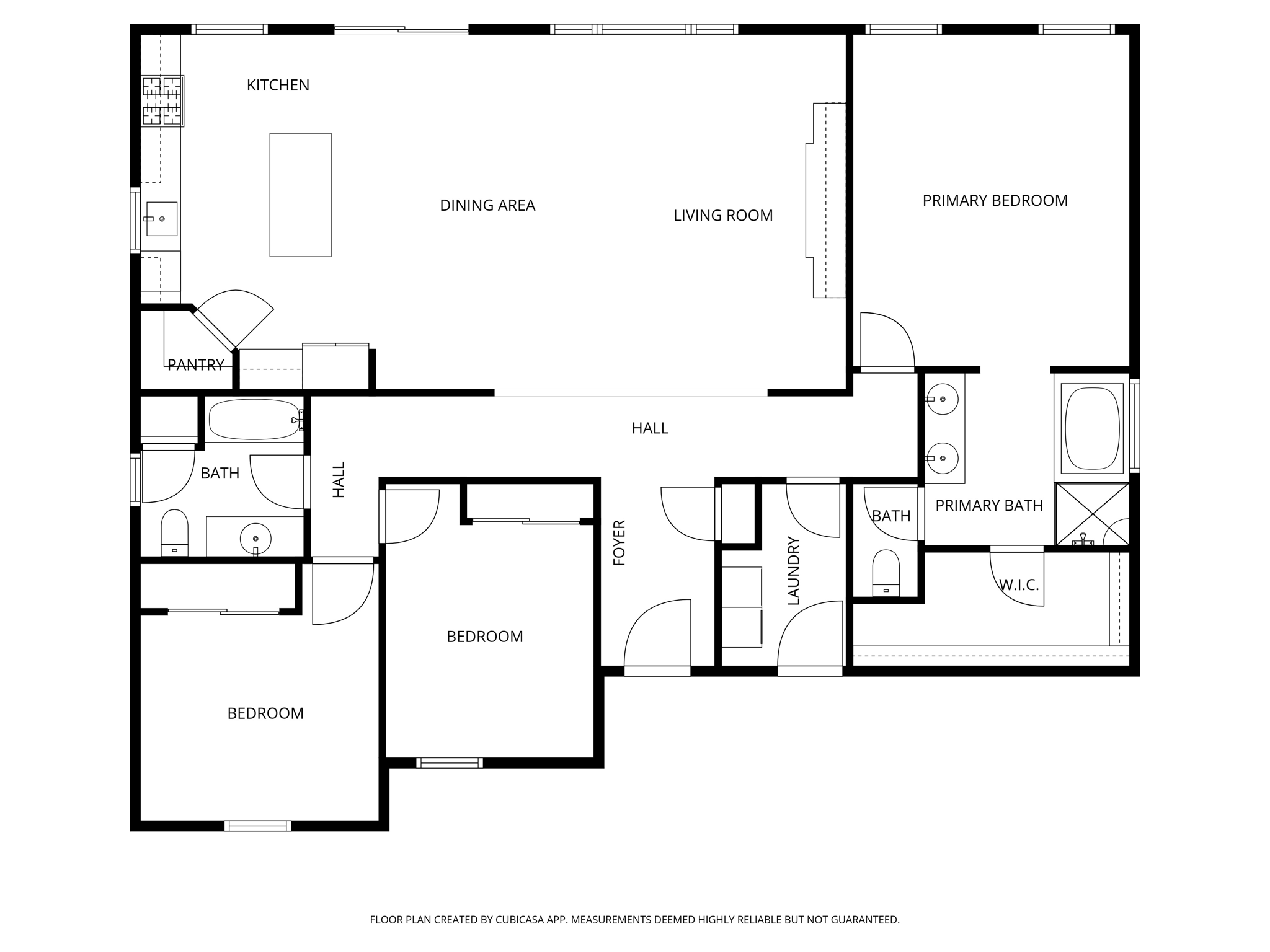
Come enjoy the panoramic mountain views from this single-story home in The Cove Community in San Jacinto! Built in 2021, this home features 1,698 square feet of living space, 3 bedrooms, 2 full bathrooms, open and bright living spaces, with a beautiful eat-in kitchen with extra seating at the kitchen island. The spacious primary bedroom is a true primary suite. Its ensuite bathroom features dual sinks, glass enclosed walk-in shower, bathtub, walk-in closet, and water closet. Your guests will love the secondary bedrooms and shared bathroom that are privately situated off the hall on the opposite end of the home. The large private backyard yard offers a full-length covered patio, pet-friendly artificial grass, and low maintenance hardscape. PAID OFF SOLAR (9 panels), luxury vinyl plank flooring, window shutters on ALL windows, indoor laundry room, and attached finished 3-car garage set this home apart from others within the community! Residents of The Cove have full access to the outdoor entertaining areas, playgrounds, courts, and fields with a low monthly HOA fee. Don't miss this opportunity to own this move-in ready home tucked away in the peaceful hills. 

  • $525,000
  • 3 Bedrooms
  • 2 Bathrooms
  • 1,698 Sq/ft
  • Lot 0.23 Acres
  • 3 Parking Spots
  • Built in 2021
  • MLS: IV26054428

Images

Images

Original (Digitally Altered)

Instagram Images

Videos

Content Coming Soon

Floor Plans